HAGLEY ROAD DISTRIBUTION BOOSTER STATION - WATER
PROJECT DETAILS
Project Name: Hagley Road DBS North & South
Project Type: Potable water supply
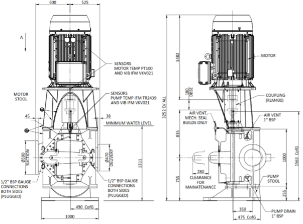
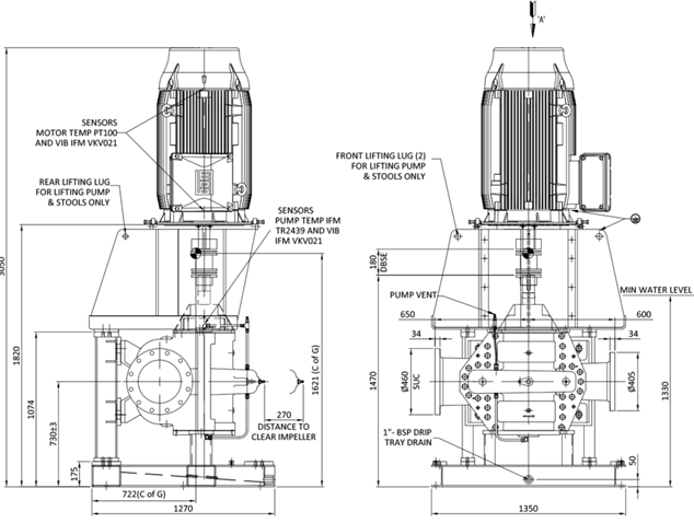
Pumps/pump Package Used: 2 Of 185 kW TQ25AL (North Pumps) & 2 Of 220 kW BR12CL (South Pumps)
Location: Hagley Road Distribution Booster Station, UK
BACKGROUND
Hagley Road Distribution Booster Station (DBS) was experiencing the following issues:
- The switchover between the existing day pump & the night pump causing surge on the network.
- The Hagley reservoir has poor turnover (calculations suggest that it takes 12 days for the water to travel through the reservoir).
- The control philosophy is heavily dependent on technicians including switchover times and the pressure profile in the control group. If one of these pumps goes down, then it is necessary to attend site to manually change the pump speed at the required times of day.
- The existing pumps are undersized and fail to deliver the set pressure consistently at higher flows.
OBJECTIVE
- Replacement of obsolete pumps
- VSD control of new North and South pumps
- Reduce surge issues in the network
- Lower maximum pressure variance within the control group
- Comply with the relevant Severn Trent specifications
SOLUTION
The 2 new LLC premium efficiency Split Case (BR12CL) North Pumps driven by VSD in Duty/Standby arrangement will be installed in a new kiosk located outside the existing pumphouse. These pumps will supply Hagley DSR directly. Hagley DSR will then supply the Northern Part of the Control Group.
The 2 new LLC premium efficiency Split Case (TQ25AL) South pumps driven by VSD in Duty/Standby arrangement will be installed in-situ in the existing pump house and will replace the 2 existing Hagley Road Pumps.
The new pumps will offer enhanced energy saving, greater control, reduction in the surge issues in the network while maintaining the adequate pressure variation within the system and is fully compliant with the Severn Trent Water specification.

