ALDERNEY WTW CLEAN BACK WASH PUMPS - WATER
PROJECT DETAILS
Project Name: Alderney WTW Clean Back Wash Pumps
Project Type: Potable water supply
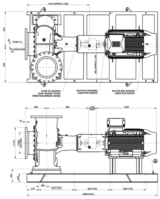
Pumps/pump Package Used: 2 Off 75 kW 12 Pole AM50A
Location: Alderney WTW, Bournemouth, Hampshire, UK
BACKGROUND
Alderney WTW is a strategically important water treatment works that supply high quality drinking water to approximately 375,000 customers – nearly 75% of the homes and businesses in Bournemouth Water’s operational area.
South West Water has made significant investment in the AMP7 to secure the long-term resilience by expanding the capacity of the water treatment facilities.
OBJECTIVE
The new clean backwash tank is comprised of 2 cells. The clean backwash tank will be supplied by gravity from the GAC outlet channel.
Two variable frequency driven GAC clean backwash pumps shall be installed adjacent to the clean backwash tank. They shall operate in a duty/standby configuration to meet the increased backwashing requirements.
The design levels are such that when the backwash tank is at TWL and the GAC contactor at BWL, and there is a negative static head. A plug valve on the pump discharge will be throttled to provide additional dynamic head.
SOLUTION
SPP have provided 2 off premium efficiency end suction Aquastream AM50A 75 kW 12 Pole pumpsets driven by VSD to meet the challenging duty conditions. The proposed pumps can handle the increased duty requirements, and various range of duty points while minimising efficiency losses in turn down ratios where possible.
Both pumps have a common suction from each of the clean backwash tank cell. They then deliver clean backwash water to the GAC Contactors through a common discharge main.
The pumpsets are also compliant to the DWI approved for use in potable water in accordance with Regulation 31 of the Water Supply (Water Quality) Regulations 2016.
